Overview
- Updated On:
- 14 października, 2025
- 63 m2
- Year Built: 1962
Description
Na sprzedaż 3-pokojowe mieszkanie o powierzchni 63,4m2 z oddzielną kuchnią (salon, 2 sypialnie, kuchnia, łazienka).
Forma własności – spółdzielcze własnościowe prawo do lokalu- możliwość zakupu przez cudzoziemca bez zgody ministerstwa.
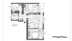
Adaptując kuchnię na sypialnię, mieszkanie można zmienić w 4 pokojowe z 3 oddzielnymi pokojami, salonem z aneksem kuchennym i łazienką. Propozycja aranżacji i przykładowe wizualizacje przedstawione na zdjęciach.
Budynek ocieplony z wyremontowaną klatką schodową.
Ogrzewanie miejskie oraz woda ujęte w czynszu (rozliczane dwa razy do roku).
Ciepła woda podgrzewana w piecyku gazowym.
Gaz doprowadzony do kuchni.
Dlaczego warto:
Świetna lokalizacja- mieszkanie znajduję w doskonale skomunikowanej części Gdańska.
Cisza i spokój- osiedle znajduje się w enklawie oddzielonej od ulic innymi budynkami przez co zgiełk miasta jest niemal niesłyszalny.
Południowa ekspozycja- balkon oraz większość okien znajdują się od południa czyniąc mieszkanie słonecznym i ciepłym.
Wysoki parter- tylko kilka schodków by dostać się do mieszkania, a jednocześnie balkon umieszczony nad poziomem terenu daje większe poczucie intymności.
Zieleń wokół z możliwością własnej aranżacji terenu bezpośrednio przed balkonem.
Potencjał mieszkania- możliwość pozostawienia obecnego układu z oddzielną kuchnią lub zmiany na mieszkanie z 3 sypialniami i salonem z aneksem kuchennym.
Oferta bez pośrednika
Zapraszam do kontaktu
608062674, kostarson@gmail.com
























