Overview
- Updated On:
- 31 marca, 2026
- 170 m2
- Year Built: 1989
Description
Do sprzedania dom jednorodzinny z wyposażeniem. Na działce znajduje się ładny ogród i zaprojektowany na elewacji zewnętrznej kominek grillowy wykonany z naturalnego czerwonego piaskowca.
Dom zlokalizowany blisko centrum miasta w obszarze niskiej zabudowy. Okolica leśnych terenów zielonych oraz Miejskiego Parku Wojkowice.
Blisko do:
– szkoły,
– przedszkola,
– urzędu i parku miejskiego,
– przychodni,
– sklepów i parku handlowego
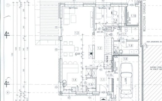
Dom jest piętrowy i w znacznej części podpiwniczony. Poddasze z ocieploną przestrzenią termoizolacyjną. Budynek został zmodernizowany i rozbudowany w 1989 roku.
Powierzchnia całkowita – 212 m²
Powierzchnia użytkowa – 170 m²
Powierzchnia działki – 787 m²
Dom składa się z:
– przedłużony garaż w bryle budynku,
– piwnica: kotłowna i pomieszcznia piwniczne,
– parter: hol, toaleta, salon z kominkiem wykonanym z czerwonego pisakowca, jadalnia połączona z kuchnią,
– półpietro: łazienka z wanną i kabiną
– piętro: otwarty pokój, korytarz, mała sypialnia, duża sypialnia
Podłoga pokryta jest panelami drewnianymi z dębu i buku. Do budynku zaprojektowano centralne ogrzewanie gazowe z przepływem obiegowym. Wnętrze budynku wykończone w drewnie.
* Możliwość skorzystania z programów typu "Czyste powietrze".



































