Atrakcyjne DWUSTRONNE 64m Wysoki Satandard

zł 785,000
Favorite
Blok

Overview

  • Updated On:
  • 6 kwietnia, 2026
  • 64 m2

Description

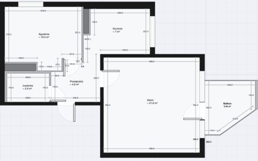
Bezpośrednio DWUSTRONNE Mieszkanie 64 m duży balkon, zielona lokalizacja.
Mieszkanie po niedawnym remoncie, otwarte i bardzo komfortowe przestrzenie.
Nowoczesna Kuchnia w pełnej zabudowie, na podłodze gres polerowany, na ścianach duże tafle luster.
Nowe AGD, Szafki w Lakierowanych frontach, zabudowa przygotowana pod zmywarkę.
Przestronny Gościnny Salon 26 m, gres na podłodze + 3 pokoje, 1 szafa w zabudowie.
Duża łazienka z dwiema taflami luster, meble lakierowane wc podtynkowe, gres na ścianach i podłodze.
Możliwość dokupienia wyposażenia mieszkania.
Duża dostępność miejsc parkingowych bezpośrednio pod blokiem.

W najbliższej okolicy duże centrum handlowe Maxim, Leroy Merlin, Obi, Kaufland, KFC, miejskie targowisko, szkoły i przedszkola, basen.

MOŻLIWY DŁUGOTERMINOWY WYNAJEM MIESZKANIA.

Możliwa zamiana za dopłatą na mieszkanie 80-100 m z 2 miejscami postojowymi w garażu podziemnym lub dom z garażem dwustanowiskowym w Legionowie lub najbliższej okolicy 😉

Address:
Zip: 05
Country: Poland
Open In Google Maps
Property Id : 137273
Price: zł 785,000
Property Size: 64 m2
Rooms: 4
Other Features
Blok
piętro: 2/3
rok budowy:
rynek:

Contact Me

Call WhatsApp

Property Reviews

zzz
Write a Review
Your Rating & Review

Similar Listings

10
sprzedaż
kamienica

Stara Ochota, 3-4 pokoje, wysokość 3,06 m

zł 880,000
Na sprzedaż 3-pokojowe kamieniczne mieszkanie znajdujące się na Starej Ochocie przy ul. Ko ...
63 m2
13
sprzedaż
Blok

Gotowe 2-pok bez PCC FV VAT 8% 15min Centrum...

zł 624,999
Na sprzedaż nowe, 2-pokojowe mieszkanie w stanie deweloperskim, położone na 4. piętrze now ...
47 m2
5
sprzedaż
Blok

47m² | Komórka | Balkon | Lokalizacja | REZE...

zł 767,000
Bezpośrednio • Bez pośredników • Dostępne od ręki Link do filmiku: https://www.youtube.com ...
47 m2
4
sprzedaż
Blok

NOVY POMIAN | Mieszkania 2-4 pok | Lokale Us...

zł 554,050
Szukasz wyjątkowego mieszkania, które przekroczy Twoje oczekiwania? Przedstawiamy NOVY POM ...
72 m2
  • Advanced Search

    zł 0 to zł 1,500,000

  • Our Listings

Compare Listings

Kontakt 608335697